Пылеуловитель ПВМ

Пылеуловитель ПВМ СА Пылеуловитель ПВМ является взрывобезопасным пылеулавливающим устройством. В проектах и технической документации может обозначаться следующими наименованиями – циклон ПВМ, скруббер ПВМ.

Применение: для очистки воздуха на различных производствах и улавливания пыли средней и мелкой дисперсности, в том числе волокнистых и плохо смачиваемых видов пыли.

Вентиляционный мокрый пылеуловитель ПВМ: описание и принцип работы

Производство циклонов ПВМ осуществляется по сериям 5.904-8, 5.904-23, а также в соответствии с типовой конструкторской документацией и техническими условиями завода производителя.

Принцип очистки воздуха заключается в следующем, при попадании загрязненного воздуха через входной патрубок и поступлении в корпус пылеуловителя, воздух с большой скоростью устремляется через отверстие, располагаемое между поверхностью воды и нижней кромкой перегородки, захватывая с собой воду. При поступлении влажного воздуха каплеотбойник, вода отделяется от газо-воздушной смеси и сливается в специальный отсек. Очищенный воздух поступает в каплеуловитель, а затем удаляется при помощи вентилятора наружу.

Обратите внимание! В связи с тем, что в процессе очистки воздуха участвует вода, не следует применять данный пылеуловитель в случаях, когда пыль имеет свойства цементироваться или кристаллизоваться и образовывать при этом стойкие соединения.

В случае когда начальная концентрация  пыли в воздухе превышает 10г/м3, то пылеуловитель ПВМ может применяться только в качестве второй ступени. Для предварительной очистки воздуха в качестве первой ступени применяют стандартные циклоны для сухой очистки газов. Это позволяет уменьшить расход воды и количество выделяемого шлама.

Эффективность очистки воздуха циклонами ПВМ достигает 95-99%.

Конструкция и основные типовые модели

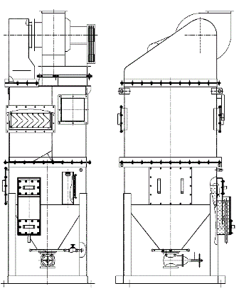
Конструкция пылеуловителей ПВМ отличается от других циклонов мокрой очистки воздуха. Корпус мокрого вентиляционного пылеуловителя состоит из двух частей. В нижней части пылеулавливающего аппарата находится вода, в верхней – расположены стационарные и нестационарные перегородки.

Пылеуловитель ПВМ - чертеж общего вида

Каплеуловитель в котором оседает вода при движении воздуха представляет собой листовой профиль, собранный в пакеты. В верхней части циклона ПВМ установлен пылевой вентилятор.

Сериями 5.904-8, 5.904-23 предусмотрено несколько типовых моделей, которые различаются конструкцией и имеют свои функциональные особенности.

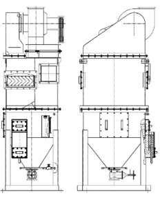
Пылеуловитель ПВМСА - чертеж общего видаРис.1 – Пылеуловитель ПВМСА

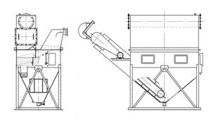
Пылеуловитель ПВМБ - чертеж с боковыми карманамиРис.2 – Пылеуловитель ПВМБ

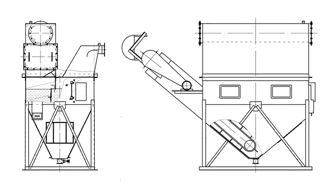
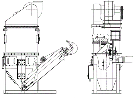
Пылеуловитель ПВМКБ конвейерный - чертеж

Рис.3 – Пылеуловитель ПВМКБ

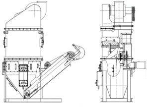
Пылеуловитель ПВМКМА - чертеж общего вида

Рис.4 – Пылеуловитель ПВМКМА

Пылеуловитель ПВМЗИК - чертеж общего вида

Рис.5 – Пылеуловитель ПВМЗИК

Рассмотрим более подробно отличие каждой модели друг от друга: Пылеуловитель ПВМСА (рис.1) – в конструкции циклона удаление шлама осуществляется через задвижку; Пылеуловитель ПВМБ (рис.2) – для удаления шлама в конструкции предусмотрены задвижка и боковые карманы; Пылеуловитель ПВМКБ (рис.3) – удаление шлама из циклона осуществляется при помощи конвейера; Пылеуловитель ПВМКМА (рис.4) – удаление шлама из полости циклона осуществляется с помощью конвейера (предназначены для  улавливания алюминиевой и цинковой пыли); Пылеуловитель ПВМЗИК (рис.5) – модернизированный пылеуловитель ПВМ с улучшенными параметрами пылеулавливания.

Технические характеристики и габаритные размеры циклонов ПВМ

Каждая модель пылеулавливаюшего агрегата имеет свою производительность и отличается габаритными размерами. Основные технические параметры представлены в таблицах.

Пылеуловитель ПВМ СА мокрый сливной

Параметры ПВМ 3СА ПВМ 5СА ПВМ 10СА ПВМ 20СА ПВМ 40СА
Производительность по воздуху, м 3 3 000 5 000 10 000 20 000 40 000
Эффективность очистки, % 95-99
Тип и номер установленного вентилятора ВЦ 14-46-2,5 ВЦП 7-40-5 ВЦП 7-40-6,3 ВЦП 7-40-8 ВЦ 4-76-10
Установленная мощность электродвигателя, кВт 5,5 11 22 30 45
Объем воды в бункере, м3 0,7 1,2 1,45 2,2 5,5
Длина перегородок, м 0,8 1,2 2,0 4,0 8,0
Масса без воды и вентагрегата, кг 610 670 1750 2400 4720
Габаритные размеры
Длинна, Б мм 1315 1590 2390 2360 4385
Ширина, А мм 1145 1370 1514 2290 2314
Высота, Н мм 3185 3575 4140 4575 5010

Мокрый сливной пылеуловитель ПВМБ с боковым карманом

Параметры

ПВМ 3Б ПВМ 5Б ПВМ 10Б ПВМ 20Б ПВМ 40Б
Производительность по воздуху, м 3 3 000 5 000 10 000 20 000 40 000
Эффективность очистки, % 95-99
Тип и номер установленного вентилятора ВЦ 14-46-2,5 ВЦП 7-40-5 ВЦП 7-40-6,3 ВЦП 7-40-8 ВЦ 4-76-10
Установленная мощность электродвигателя, кВт 5,5 15 22 30 45
Объем воды в бункере, м3 0,7 1,2 1,45 2,2 5,5
Длина перегородок, м 0,8 1,2 2,0 4,0 8,0
Масса без воды и вентагрегата, кг 750 950 1850 2560 5320

Габаритные размеры

Длинна, мм 1315 1590 2390 2360 4385
Ширина, мм 1145 1370 1514 2290 2314
Высота, мм 3185 3575 4140 4575 5010

Пылеуловитель ПВМКБ с механизированным удалением шлама

Параметры ПВМ 5КБ ПВМ 10КБ ПВМ 20КБ ПВМ 40КБ
Производительность по воздуху, м 3 5 000 10 000 20 000 40 000
Эффективность очистки, % 95-99
Тип и номер установленного вентилятора ВЦП 7-40-5 ВЦП 7-40-6,3 ВЦП 7-40-8 ВЦ 4-76-10
Установленная мощность электродвигателя, кВт 15 22 30 45
Объем воды в бункере, м3 0,72 1,45 3 8
Длина перегородок, м
Масса без воды и вентагрегата, кг 1620 2550 2835 6200
Габаритные размеры
Длинна, мм 3040 3450 4200 6200
Ширина, мм 1536 1500 2114 2204
Высота, мм 3660 4140 4575 5010

Конвейерный пылеуловитель ПВМКМА с механическим удалением шлама

Параметры ПВМ 5КМА ПВМ 10КМА
Производительность по воздуху, м 3 5 000 10 000
Эффективность очистки, % 95-99
Тип и номер установленного вентилятора В-ЦП6-45-5 В-ЦП7-40-6
Установленная мощность электродвигателя, кВт 15 22
Объем воды в бункере, м3 0,72 1,45
Длина перегородок, м  2  4
Масса без воды и вентагрегата, кг 1250 2150
Габаритные размеры
Длинна, мм 3040 3450
Ширина, мм 1536 1500
Высота, мм 3660 4140

Размеры в таблице указаны справочно. Производитель оставляет за собой право вносить изменения в размеры и конструкцию аппарата, не отраженные в данной таблице.

Качество пылеулавливающей продукции ЗТО Свердловский подтверждено декларацией о соответствии Таможенного союза 010/2011 “О безопасности машин и оборудования”. С документами о качестве Вы можете ознакомиться на странице ДОКУМЕНТАЦИЯ.

Как заказать и купить циклон ПВМ?

Циклоны и пылеуловители изготавливаются под заказ. Срок изготовления и актуальную стоимость продукции Вы можете уточнить в отделе продаж по координатам на странице КОНТАКТЫ. Предлагает также воспользоваться специальной формой – ОТПРАВИТЬ ЗАЯВКУ на сайте.

В запросе необходимо указать модель (обозначение) пылеуловителя, требуемое количество и приложить реквизиты Вашей организации. Ответным сообщением Вам будет направлено ценовое предложение с указанием актуальной стоимости и срок изготовления.

Доставка осуществляется транспортными компаниями в регионы РФ и страны Таможенного союза ЕАЭС (Казахстан, Армения, Белоруссия, Киргизия). Стоимость доставки рассчитывается дополнительно.