Циклон ЦРк часто обозначается как циклон-разгрузитель. Используется циклон для очистки воздуха на различных мукомольных предприятиях для улавливания зерновой и мучной пыли.
Применение: улавливание пыли выделяемой в зерноочистительных установках отделений мельниц, а также системах пневмотранспорта зерна.
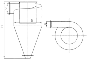
Циклон ЦРк: основные рабочие параметры и описание
Благодаря своим рабочим характеристикам циклоны ЦРк широко востребованы и применяются на предприятиях сельско-хозяйственного сектора, деревообработки, а также иных отраслей промышленности, в которых не требуется от пылеуловителя высокой производительности, но при этом минимизация энергозатрат имеет широкое значение.
Уменьшенный размер, по сравнению с моделью ЦР, позволяет устанавливать циклон-разгрузитель ЦРк, в помещениях небольшого объема.
По исполнению, циклон ЦРк изготаливается как левосторонним, так и правосторонним. Левое и правое исполнение определяется по направлению вращения воздуха в корпусе относительно выхлопной трубы.
Следует обратить внимание, что данный циклон не может применяться для очистки воздуха от слипающейся и волокнистой пыли. Основные рабочие параметры представлены в таблице ниже.
| Скорость входного потока Vвх (для зерновой пыли) | 8-20 м/с |
| Скорость входного потока Vвх (для продуктов размола) | 14-20 м/с |
| Уровень сопротивления | 700-900 Па |
| Производительность | до 2544 м3/ч |
| Коэффициент гидравлического сопротивления (диаметр циклона, м) | 3,5 D |
| Эффективность очистки | 90% |
Технические характеристики модельного ряда циклона ЦРк
Модельный ряд циклонов для зерновой и мучной пыли представлен аппаратамы диаметром корпуса от 200 до 750 мм, и производительностью до 2544 м3/ч. Материальное исполнение – листовая сталь марки ст.3. По желанию заказчика возможно применение иных марок стали, например, сталь 09Г2С, нержавеющая сталь 12Х18Н10Т и другие. Толщина стенки также может варьироваться в зависимости от потребностей Заказчика.
| Обозначение циклона |
Производительность по воздуху м3/ч | D, мм | Н, мм | a х b, мм | Масса, кг |
| ЦРк-200 | 90 – 180 | 200 | 1000 | 107х76 | 14,0 |
| ЦРк-250 | 141 – 282 | 250 | 1000 | 122х86 | 17,0 |
| ЦРк-300 | 204 – 408 | 300 | 1000 | 142х96 | 19,5 |
| ЦРк-350 | 277 – 554 | 350 | 1000 | 157х106 | 22,0 |
| ЦРк-400 | 362 – 726 | 400 | 1000 | 177х116 | 25,0 |
| ЦРк-450 | 458 – 916 | 450 | 1000 | 192х131 | 28,0 |
| ЦРк-500 | 565 – 1130 | 500 | 1000 | 212х141 | 31,0 |
| ЦРк-550 | 684 – 1368 | 550 | 1100 | 232х151 | 36,0 |
| ЦРк-600 | 814 – 1628 | 600 | 1200 | 247х161 | 43,0 |
| ЦРк-650 | 955 – 1910 | 650 | 1300 | 267х171 | 46,5 |
| ЦРк-700 | 1108 – 2216 | 700 | 1400 | 282х181 | 56,5 |
| ЦРк-750 | 1272 – 2544 | 750 | 1500 | 302х191 | 64,0 |
Пылеулавливающее оборудование на окончательной стадии процесса изготовления покрывается антикоррозионным составом. Качество продукции ЗТО Свердловский подтверждается сертификатами и декларациями соответствия, с указанными документами Вы можете ознакомиться на странице ДОКУМЕНТАЦИЯ.
Циклоны и аспирационное оборудование изготавливается в соответствии с типовой конструкторской документацией, техническими условиями, ТР ТС 010/2011 “О безопасности машин и оборудования”.
Как узнать цену и купить?
Для уточнения цены на продукцию, необходимо направить заявку в отдел продаж любым удобным Вам способом по координатам на странице КОНТАКТЫ. Предлагаем для оперативной обработки запроса, воспользоваться формой ОТПРАВИТЬ ЗАЯВКУ на сайте.
В ответ на Ваш запрос будет направлено предложение, с указанием актуальной цены и срока изготовления. При положительном решении о закупке заключается договор и оформляются все необходимые бухгалтерские документы. По вопросу оформления документов Вы можете связаться с менеджерами отдела продаж.
Доставка циклонов ЦРк и других моделей осуществляется транспортными компаниями во все регионы РФ и страны Таможенного союза ЕАЭС (Казахстан, Армения, Белоруссия, Киргизия).