Бункер циклона представляет собой специальную металлическую накопительную емкость, которая крепится к нижней части циклона.
Применение: бункера могут применяться на различных моделях циклонов для сбора и накопления пыли, отделяемой от газо-воздушной смеси, в процессе очистки. Также бункер может применяться как емкость для хранения различных сыпучих веществ.
Бункер для сбора пыли: область применения
При использовании любых циклонов в процессе очистки воздуха, отделяется пыль (загрязнения, шлам). Указанные загрязнения опускаются в нижнюю часть циклона и должны удаляться из него при помощи пылевыгружного устройства или поступать в бункер для сбора пыли, для накопления и последующего удаления. Объем бункера для циклонов как правило подбирается таким образом, чтобы обеспечить необходимую потребность в накоплении и хранении сыпучих веществ образующихся в течение суток.
Бункеры часто применяются на различных производствах как накопительная емкость для сыпучих материалов.
Конструктивные особенности и типы бункеров
В зависимости от предпочтений заказчика и требований проектов бункера могут изготавливаться различной формы и размера. Конструктивно выделяют следующие типы бункеров: пирамидальные, цилиндрические, конические. Каждый тип отличается своими функциональными особенностями, например пирамидальный бункер, благодаря своей конструкции проще вписывается в объем помещений при необходимости установки бункеров в ряд. Цилиндрический бункер благодаря отсутствию граней на внутренней части корпуса способствует более быстрой выгрузке сыпучих материалов.
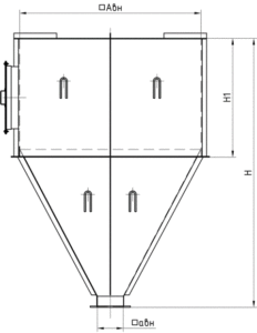
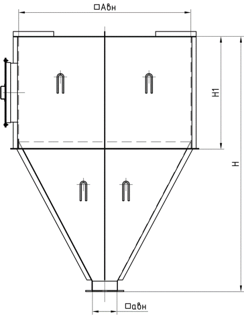
Пирамидальный тип бункера |
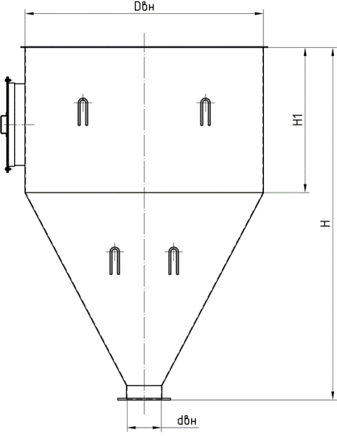
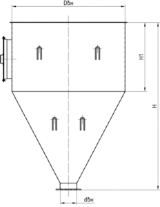
Цилиндрический тип бункера |
Материальное исполнение – сталь 3, сталь 20. Толщина стенки металла зависит от объема и типа изделия. По желанию Заказчика могут применяться иные типы стали (09Г2С, 12Х18Н10Т), а также особая толщина стенки металла.
Модельный ряд и габаритные размеры
В зависимости от модели и типа, бункера могут выполняться различного объема, с различными габаритными размерами. В таблицах представим стандартные модели бункеров и основные технические характеристики.
Цилиндрический бункер
Данный тип часто обозначается – бункер Ц. Типовой ряд стандартных моделей представлен изделиями с объемом от 0,1 до 22,9 м3.
| Объем бункера, м3 |
Dвн, мм | Н, мм | Н1, мм | dвн, мм | Масса, кг |
| V=0,1 | 450 | 945 | 495 | 200 | 31 |
| V=0,3 | 600 | 1260 | 660 | 200 | 56 |
| V=0,5 | 750 | 1575 | 825 | 200 | 87 |
| V=0,9 | 900 | 1890 | 990 | 200 | 168 |
| V=1,4 | 1050 | 2205 | 1155 | 200 | 228 |
| V=2,0 | 1200 | 2520 | 1320 | 200 | 298 |
| V=2,9 | 1350 | 2835 | 1485 | 300 | 377 |
| V=4,0 | 1500 | 3150 | 1650 | 300 | 466 |
| V=5,3 | 1650 | 3465 | 1815 | 300 | 564 |
| V=6,9 | 1800 | 3780 | 1980 | 300 | 671 |
| V=8,7 | 1950 | 4095 | 2145 | 300 | 787 |
| V=10,8 | 2100 | 4410 | 2310 | 300 | 913 |
| V=13,3 | 2250 | 4725 | 2475 | 300 | 1048 |
| V=16,1 | 2400 | 5040 | 2640 | 300 | 1193 |
| V=19,2 | 2550 | 5355 | 2805 | 300 | 1346 |
| V=22,8 | 2700 | 5670 | 2970 | 300 | 1509 |
Размеры в таблице указаны справочно. В зависимости от требований Заказчика могут изготавливаться бункера других размеров, в том числе по индивидуальным чертежам и эскизам.
Пирамидальный бункер
Такие модели обозначаются – бункер П. Объем пирамидальных бункеров в стандартном исполнении варьируется от 0,2 до 29,0 м3.
| Объем бункера, м3 | Авн, мм | Н, мм | Н1, мм | авн, мм | Масса, кг |
| V=0,2 | 450 | 945 | 495 | 200 | 40 |
| V=0,3 | 600 | 1260 | 660 | 200 | 71 |
| V=0,7 | 750 | 1575 | 825 | 200 | 111 |
| V=1,1 | 900 | 1890 | 990 | 200 | 214 |
| V=1,7 | 1050 | 2205 | 1155 | 200 | 291 |
| V=2,6 | 1200 | 2520 | 1320 | 200 | 380 |
| V=3,7 | 1350 | 2835 | 1485 | 300 | 481 |
| V=5,1 | 1500 | 3150 | 1650 | 300 | 594 |
| V=6,8 | 1650 | 3465 | 1815 | 300 | 719 |
| V=8,7 | 1800 | 3780 | 1980 | 300 | 856 |
| V=11,1 | 1950 | 4095 | 2145 | 300 | 1004 |
| V=13,8 | 2100 | 4410 | 2310 | 300 | 1165 |
| V=16,9 | 2250 | 4725 | 2475 | 300 | 1337 |
| V=20,5 | 2400 | 5040 | 2640 | 300 | 1521 |
| V=24,5 | 2550 | 5355 | 2805 | 300 | 1717 |
| V=29,0 | 2700 | 5670 | 2970 | 300 | 1925 |
Размеры представлены в таблице для ознакомления. Производитель оставляет за собой право вносить изменения в конструкцию, не отраженные в данной таблице.
Вы можете заказать бункер по индивидуальным размерам. Стоимость и срок изготовления нестандартной продукции рассчитывается дополнительно.
Качество продукции ЗТО Свердловский подтверждается сертификатами и декларациями соответствия. С документами о качестве Вы можете ознакомиться на странице ДОКУМЕНТАЦИЯ.
Как заказать бункер для циклона?
Вы можете заказать бункер одновременно с циклоном, в таком случае понадобиться только знать необходимый объем. В случае если Вы хотите заказать бункер отдельно от циклона, потребуются чертежи или схема расположения отверстий и габаритные размеры изделия.
Для того, чтобы купить бункер необходимо направить запрос на расчет стоимости в отдел продаж нашего предприятия. Координаты отдела продаж размещены на странице КОНТАКТЫ. Вы также можете воспользоваться специальной формой ОТПРАВИТЬ ЗАЯВКУ на сайте.
Мы поможем организовать доставку готовой продукции в любой регион РФ, а также города стран Таможенного союза ЕАЭС (Казахстан, Киргизия, Армения, Белоруссия).

